Volver al listado
Venta
Proyecto de Lujo en Santanyí: Finca de 18500 m2 con Licencia, Suministros y Esencia Mallorquina
Santanyí

VentaTerreno
950.000 €
0Dormitorios
0Baños
0 m²Construidos
18.509 m²Parcela
Descripción
Oportunidad excepcional en el sureste de Mallorca.
Presentamos una propiedad única situada estratégicamente entre el carismático pueblo de Santanyí, la tranquilidad de Es Llombards y las playas más emblemáticas de la zona. Con una extensión de más de 18.500 m², esta finca ofrece el equilibrio perfecto entre la escala monumental y el diseño funcional.
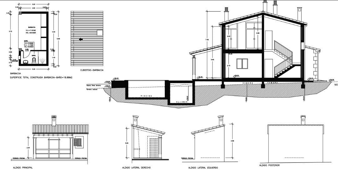
Un Proyecto Pensado para el Confort~La vivienda, con un total de 377 m² construidos, se distribuye en dos niveles diseñados para optimizar la luz y las vistas.
Planta Baja: El corazón de la casa. Cuenta con un gran salón-comedor y una cocina de concepto abierto que conecta directamente con el garaje, facilitando la logística diaria. En esta planta se ubica 1 dormitorio doble (ideal para invitados o despacho), un baño completo, lavandería y sala técnica.
Planta Primera: La zona de noche privada, compuesta por 3 amplios dormitorios y 2 baños adicionales, ofreciendo vistas despejadas al paisaje mediterráneo.
Ocio Exterior: El proyecto incluye una piscina de diseño y una espectacular zona de barbacoa con baño propio, perfecta para disfrutar del exterior con total independencia.
Historia y Paisaje en un Entorno Privado~La finca no es un lienzo en blanco, sino un espacio con alma. Se encuentra totalmente delimitada por muros de piedra original y conserva elementos tradicionales que la hacen destacar:
Dos construcciones antiguas de piedra que se pueden integrar en el paisaje.~Dos cisternas históricas que mantienen la estética auténtica mallorquina.
La Gran Ventaja: Conexiones Listas~A diferencia de otros terrenos en la zona, esta propiedad ya cuenta con las conexiones de luz y agua realizadas. Este factor es determinante, ya que permite ahorrar meses de trámites y comenzar la construcción de forma inmediata.
Resumen de Características~Terreno: +18.500 m² vallados en piedra seca.~Construcción: 377 m² (Proyecto unifamiliar).~Distribución: 4 dormitorios (1 en planta baja, 3 en planta primera) y 4 baños en total.~Extras: Garaje con acceso directo a la cocina, piscina, zona de barbacoa con baño.~Ubicación: Privacidad absoluta entre Santanyí y Es Llombards.
Material privado
Descarga el dossier completo de esta propiedad
Recibe una version en PDF con fotos, ficha tecnica y resumen comercial. Si formas parte del equipo, el acceso interno queda desbloqueado durante 30 dias.
Entrega segura
Propiedades Similares
SantanyíTerreno
Suelo rústico con proyecto para la construcción de una finca rústica en Santanyí
825.000 €
330 m²








